Details
Neubau - Exklusive 4.5 Zimmer Ferien-Dachwohnung über dem Walensee
Grunddaten
Adresse
Quartnerstrasse 24
8883 Quarten
Etage
2
Badezimmer
2
Zimmer
4.5
Balkonfläche
14 m2
Kellerfläche
9 m2
Baujahr
2027
Eigenschaften
Balkon
Bergsicht
Garage
Kabel TV
Kinderfreundlich
Lift
has-multimedia-wiring
Rollstuhlgängig
Ruhige Lage
Seesicht
Sonnig
Tumbler
Waschmaschine
Zweitwohnung
Neubau
Visuals
Angebot
Kaufpreis
CHF 895'000.00
Verfügbar
auf Anfrage
Beschreibung
Ferien über dem Walensee
An erhöhter, sonniger Lage über dem Walensee, mit herrlichem Blick auf den wunderschönen See, auf die markante Churfirstenkette und das umliegende Bergpanorama wird an der Quartnerstrasse 24 in Quarten ein moderner Neubau mit nur vier exklusiven Eigentumswohnungen realisiert. Das Gebäude entsteht hinter dem bestehenden Mehrfamilienhaus mit zwei Eigentumswohnungen und fügt sich harmonisch in das gewachsene Quartier ein. Ruhig gelegen vereint dieses Projekt naturnahe Idylle mit zeitgemässem Wohnkomfort.
Erstbezug - exklusive 4.5 Zimmer Ferien-Dachwohnung über dem Walensee
Willkommen in Ihrem neuen Feriendomizil
An sonniger und ruhiger Lage oberhalb des Walensee erwartet Sie diese stilvolle 4.5-Zimmer-Dachwohnung. Der Blick auf den Walensee, die eindrucksvollen Churfirsten und das umliegende Bergpanorama macht diese Wohnung zu einem besonderen Zuhause.
Grosszügige Fensterflächen lassen viel Tageslicht in die Räume und schaffen eine helle, angenehme Wohnatmosphäre. Die klare Architektur und der durchdachte Grundriss sorgen für ein modernes Wohngefühl mit viel Komfort.
In den Wohn- und Schlafzimmern sowie im Korridor wird hochwertiger Eichenparkett verlegt, der den Räumen Wärme und Eleganz verleiht. Die Nasszellen sind mit modernen Plattenbelägen ausgestattet und unterstreichen den gehobenen Ausbaustandard.
Die offen gestaltete Küche mit Kochinsel bildet das Herzstück des Wohnbereichs. Der angrenzende Essbereich mit Blick ins Grüne lädt zum Verweilen ein und bietet den idealen Rahmen für gemütliche Stunden mit Familie und Freunden.
Ein besonderes Highlight ist der grosszügige Balkon mit viel Privatsphäre. Hier geniessen Sie Ruhe, frische Bergluft und die wunderschöne Natur rund um den Walensee.
Die Tiefgarage mit sechs Einstellplätzen sowie eine Einzelgarage sorgen zusätzlich für Komfort.
Auch als Zweitwohnsitz zugelassen - ideal für entspannte Tage und Ferien am Walensee.
Neubau - Modernes Wohnen mit Stil und Komfort
Diese exklusive 4.5 Zimmer-Dachwohnung überzeugt durch modernes Design, klare Linien, hochwertige Ausstattung und ein Wohlgefühl, das sofort begeistert!
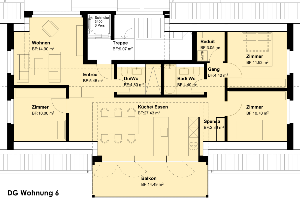
Das Wichtigste im Überblick
- Erstbezug l Neubau
- 4.5 Zimmer l 134.5 m² BGF
- Dachgeschoss
- Bezugsbereit: voraussichtlich Ende 2027/Anfang 2028
- ruhige, sonnige Lage
- Blick auf den Walensee, die Churfirsten und das umliegende Bergpanorama
- separater Wohnbereich mit Seeblick
- hochwertige Küche mit Kochinsel
- heller Essbereich mit Blick ins Grüne
- Bad/WC
- zusätzliches DU/WC mit begehbarer Dusche
- Reduit mit Waschmaschine und Tumbler
- drei grosse, lichtdurchflutete Zimmer
- Balkon mit 14.5 m²
- Lift
- grosszügiges Kellerabteil im 2. Untergeschoss
- Tiefgarage mit 6 Einstellplätzen
- Tiefgaragenplatz optional: CHF 40'000.00
- E-Mobility: Leerrohre für Ladestationen sind vorbereitet
- Photovoltaikanlage für Allgemeinstrom/Heizung
- Heizsystem: Dolder Sole-Abluft-Wasser Wärmepumpe
Wärmegewinnung Erdsonde und Abluft
Lüftungssystem RAC, inkl. Kellerlüftung
kontrolliertes Abluftsystem 24/7
Freecooling (kühlen im Sommer) - Zweitwohnsitz möglich
Ein Zuhause zum Wohlfühlen
Diese Wohnung verbindet modernes Wohnen mit einer einzigartigen Lage über dem Walensee.
Ein idealer Ort für Menschen, die Qualität, Ruhe und die Nähe zur Natur schätzen.
Kontakt
Überzeugen Sie sich selbst von dieser einzigartigen Neubauwohnung in Quarten über dem Walensee.
Kontaktieren Sie uns noch heute - wir freuen uns auf Ihre Anfrage.
ACV WILLI ...weil Vertrauen zählt!
Nachhaltigkeit und Ökologie
Heizung / Lüftung
Das Dolder Heiz- und Lüftungssystem (Sole- Abluft- Wasser Wärmepumpe) verbindet modernste Technik mit nachhaltiger Energiegewinnung und sorgt das ganze Jahr über für höchsten Wohnkomfort. Die Anlage nutzt natürliche Wärmequellen, wie die Energie aus dem Erdreich über Erdsonden sowie die in der Abluft enthaltene Wärme, und wandelt diese effizient in Heizenergie und warmes Wasser um. Dadurch reduziert das System den Stromverbrauch erheblich und schont die Umwelt.
Dank der Sole-Abluft-Wasser Wärmepumpe, den großen Pufferspeichern und dem kontrollierten Lüftungssystem genießen Sie jederzeit frische Luft, angenehme Temperaturen und warmes Wasser auf Abruf. Mit Freecooling sorgt das System im Sommer zusätzlich für angenehme Kühle, ganz ohne energieintensive Klimaanlage.
Das Dolder System steht für nachhaltige Technologie, niedrige Betriebskosten und rundum hohen Wohnkomfort - alles in einem intelligent gesteuerten System.
Photovoltaik-Anlage inklusive - nachhaltig & clever
Die Liegenschaft verfügt über eine moderne Photovoltaik-Anlage, die einen großen Teil Ihres Strombedarfs für den Allgemeinstrom und die Heizung selbst erzeugt. Das bedeutet für Sie: deutlich niedrigere Stromkosten, weniger Abhängigkeit von steigenden Energiepreisen und ein aktiver Beitrag zum Umweltschutz.
Für Sie heißt das nicht nur Ersparnis, sondern auch Wertsteigerung. Mit dieser PVA-Anlage investieren Sie also in Ihr Zuhause und gleichzeitig in eine nachhaltige, zukunftsorientierte Energiequelle.
E-Mobility ready - für die Zukunft gerüstet
Die Liegenschaft wird für Elektrofahrzeuge vorbereitet: Leerrohre für Ladestationen sind vorgesehen, sodass das Aufrüsten einer eigenen E-Ladestation unkompliziert möglich ist. Das spart Aufwand und Kosten, wenn Sie künftig ein E-Auto nutzen möchten.
So verbinden Sie Komfort, Zukunftsfähigkeit und Nachhaltigkeit - eine Immobilie, die mit der Zeit geht.
Verkaufsmodalitäten
Reservation
Sollten Sie sich für eine Wohnung in der Überbauung Neubau MFH Quartnerstrasse 24 in Quarten entschieden haben, können wir diese für Sie gerne reservieren. Dazu erstellen wir einen Reservationsvertrag für Sie.
Öffentliche Beurkundung des Kaufvertrages / Handänderungskosten
Die öffentliche Beurkundung der Kaufverträge wird über das Grundbauchamt Quarten abgewickelt. Die Handänderungssteuern und Grundbuchgebühren werden hälftig von der Käuferschaft und hälftig von der Verkäuferschaft getragen.
Zahlungsplan
CHF 20'000.00 Anzahlung bei Abschluss des Reservationsvertrages
20% bei Beurkundung des Kaufvertrages (abzüglich Anzahlung)
80% bei Wohnungsübergabe
Mehr- und Minderkosten Käuferauswahlen
Nach Reservation und nach Terminvereinbarung, haben Sie die Möglichkeit je nach Projektfortschritt die Materialisierung des Innenbaus selbst auszuwählen. Ihnen steht dabei eine breite Vorauswahl zur Verfügung. Die Auswahl der Materialien in den Ausstellungen der Lieferanten muss in Absprache mit der Bauleitung folgen. Aus besonderen Ausbauwünschen können Mehr- und Minderkosten entstehen. Die Koordination erfolgt durch die Bauleitung.
Hinweise
Aus den in dieser Dokumentation enthaltenen Visualisierungen, Plänen, Zeichnungen und Angaben, können keinerlei Ansprüche erhoben werden. Insbesondere kommt den Plänen die gesetzliche Wirkung von Grundbuchplänen nicht zu. Für Ausführungen und Flächenangaben sind der detaillierte Baubeschrieb pro Wohnung sowie die Pläne im Massstab 1:50 massgebend. Ausführungsbedingte Änderungen, Anpassungen und/oder Massabweichungen, sowie Zwischen- verkauf und Preisänderungen bleiben jederzeit ausdrücklich vorbehalten.
Lage
Kontaktformular
Ansprechperson
Margot Wildhaber
Immobilienvermarkterin mit eidg. FA
Immobilienbewirtschafterin mit eidg. FA
